Cártama

Te koop Finca - Cortijo Costa Del Sol Cártama € 300.000,-

Ref.no: RSOR5041972
Price: € 300.000,-

1-7980e48d732b6fc85c14b43b94d2aa54.jpg

Te koop Finca - Cortijo Costa Del Sol Cártama € 300.000,-

Bedrooms2
Salles de bains1
Superficie du terrain2500m²
Living area70m²
Poolyes
Gardenyes
Parkingno
Built year2010
Setting: Country
Orientation: South
Condition: Excellent
Pool: Private
Views: Country
Features: Covered Terrace, Private Terrace, Solarium
Furniture: Fully Furnished
Kitchen: Fully Fitted
Garden: Private
Security: Gated Complex
Parking: Open, More Than One
Utilities: Electricity, Drinkable Water
Category: Resale
Ref.no: RSOR5041972
Price: € 300.000,-

Plus d'information ›››
Te koop Finca - Cortijo Costa Del Sol Cártama € 300.000,-

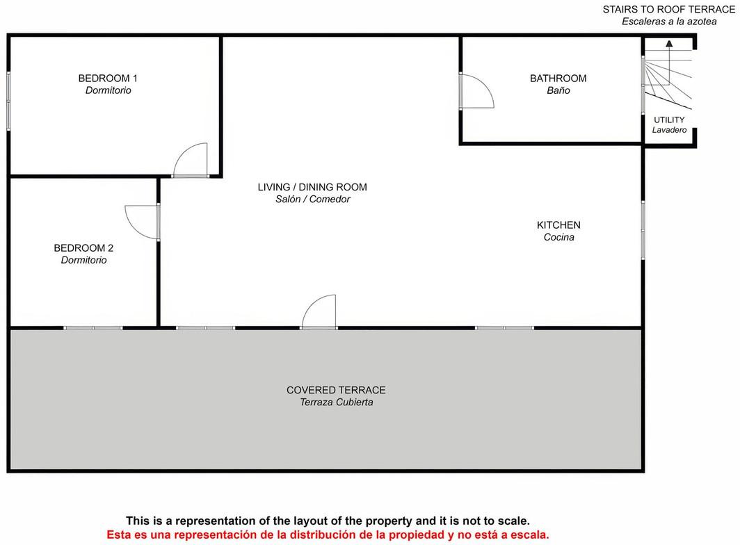
Charming Country House for Sale in Cártama
Country house for sale in Cártama, located on a fully fenced plot that ensures privacy and security.
The property is all on one level and features a living room with open-plan kitchen, two bedrooms, and one bathroom, with a built area of 70 m². At the front of the house, there's a 32 m² porch, bringing the total constructed area on the plot to 102 m².
Please note: The swimming pool is not registered.
Water supply comes from a communal well managed by a local association. The maintenance fee is €50 every two months. The well fills an 18,000-liter tank automatically every night from 10:00 PM.
An excellent opportunity for those looking for peace and quiet in a rural setting, with easy access to the Málaga–Marbella motorway.

Alternatives

1-7980e48d732b6fc85c14b43b94d2aa54.jpg

Te koop Finca - Cortijo Costa Del Sol Alhaurín El Grande € 255.000,-

Price € 255.000,-
Plus d'information
1-7980e48d732b6fc85c14b43b94d2aa54.jpg

Te koop Finca - Cortijo Costa Del Sol Cártama € 285.000,-

Price € 285.000,-
Plus d'information
1-7980e48d732b6fc85c14b43b94d2aa54.jpg

Te koop Finca - Cortijo Costa Del Sol Ardales € 299.000,-

Price € 299.000,-
Plus d'information
1-7980e48d732b6fc85c14b43b94d2aa54.jpg

Te koop Finca - Cortijo Costa Del Sol Alhaurín El Grande € 320.000,-

Price € 320.000,-
Plus d'information
Disclaimer | Links
Casadelmar %lng_cookie_notice% %lng_close%
x