Los Arqueros

Te koop Gelijkvloers appartement Costa Del Sol Los Arqueros € 410.000,-

Ref.no: RSOR5306479
Price: € 410.000,-

1-7980e48d732b6fc85c14b43b94d2aa54.jpg

Te koop Gelijkvloers appartement Costa Del Sol Los Arqueros € 410.000,-

Bedrooms2
Salles de bains2
Living area97m²
Poolyes
Gardenyes
Parkingyes
Setting: Close To Golf, Close To Shops, Close To Town, Close To Schools, Urbanisation
Orientation: South
Condition: Renovation Required
Pool: Communal
Climate Control: Hot A/C, Cold A/C, Fireplace
Views: Sea, Panoramic
Features: Covered Terrace, Fitted Wardrobes, Private Terrace, Tennis Court, Access for people with reduced mobility, Barbeque
Furniture: Fully Furnished
Kitchen: Fully Fitted
Garden: Communal
Parking: Street, More Than One, Communal
Category: Bargain
Ref.no: RSOR5306479
Price: € 410.000,-

Plus d'information ›››
Te koop Gelijkvloers appartement Costa Del Sol Los Arqueros € 410.000,-

2-Bedroom Apartment with Panoramic Sea Views and 3-Bedroom Conversion Potential – Puerto del Almendro, Los Arqueros

Set in an elevated position within the sought-after community of Puerto del Almendro in Los Arqueros, this bright two-bedroom apartment enjoys breathtaking panoramic sea views stretching across the Mediterranean coastline. The urbanisation is renowned for its beautifully maintained gardens and one of the most charming pool areas in the area, offering stunning sea views and a peaceful atmosphere.

Inside, the apartment is filled with natural light and offers a comfortable layout that is ready to move into immediately, while also presenting an excellent renovation opportunity for buyers looking to personalise the space.

The property features:
✔ 2 spacious bedrooms
✔ 2 en-suite bathrooms
✔ Bright living and dining area
✔ Fully fitted kitchen
✔ Air conditioning (hot & cold)
✔ Two independent private terraces, each with a unique orientation and spectacular sea views
✔ Step-free access for added convenience

The dual terraces are a standout feature, allowing you to enjoy sunshine throughout the day while taking in uninterrupted panoramic sea views from different perspectives.

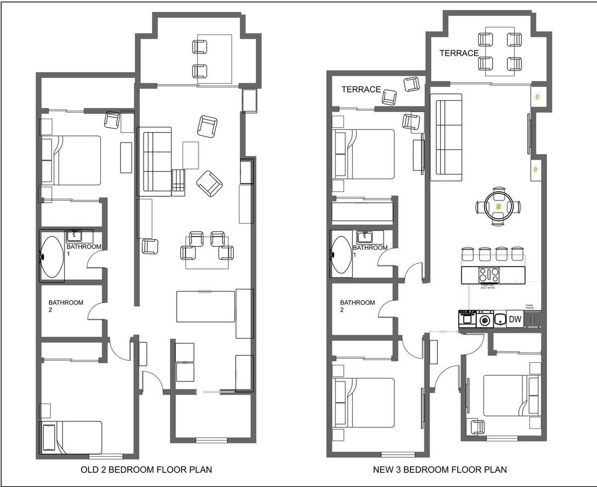
In addition to being a comfortable home as it stands, the apartment also offers excellent potential for renovation and reconfiguration. With the appropriate redesign, the property can potentially be converted into a 3-bedroom apartment, creating additional value and flexibility for future owners. Concept plans illustrating this 3-bedroom conversion are included in the photo gallery.

Located just minutes from San Pedro, Puerto Banús, golf courses, international schools, and all amenities, this property offers the perfect balance between tranquility and accessibility.

Whether you are looking for:
✔ A permanent residence
✔ A luxury second home
✔ A superb renovation project with strong value potential
✔ Or a high-demand investment in Benahavís

The perfect blend of existing value and future potential, in one of the most sought-after communities on the Costa del Sol.

Contact us today for more details!

Alternatives

BOHADP32_498_V0_8EFA.jpg

Te koop Appartement Costa Del Sol San Pedro De Alcántara € 408.000,-

Price € 408.000,-
Plus d'information
BOHACP1356_4160_V1_2F36.jpg

Te koop Appartement Costa Del Sol Mijas € 395.000,-

Price € 395.000,-
Plus d'information
BOHAAP1349_3762_V1_DFF3.jpg

Te koop Appartement Costa Del Sol Elviria € 353.000,-

Price € 353.000,-
Plus d'information
BOHAAP1193_2513_V1_8F3C.jpg

Te koop Appartement Costa Del Sol Puerto Marina € 499.000,-

Price € 499.000,-
Plus d'information
Disclaimer | Links
Casadelmar %lng_cookie_notice% %lng_close%
x