Benalmadena

Te koop Penthouse Costa Del Sol Benalmadena € 669.000,-

Ref.no: RSOR5264743
Price: € 669.000,-

1-7980e48d732b6fc85c14b43b94d2aa54.jpg

Te koop Penthouse Costa Del Sol Benalmadena € 669.000,-

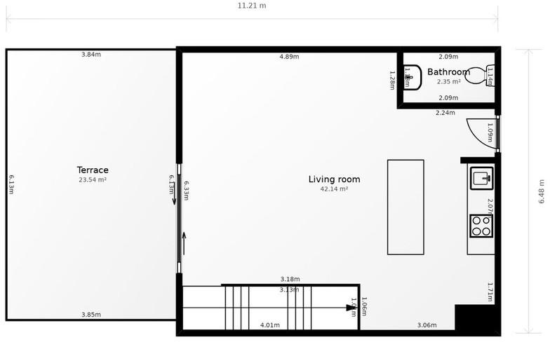
Bedrooms3
Salles de bains2
Living area106m²
Poolyes
Gardenyes
Parkingyes
Built year2020
Setting: Close To Golf, Close To Port, Close To Shops, Close To Sea, Close To Town, Close To Schools, Close To Forest, Close To Marina, Urbanisation
Orientation: South
Condition: Excellent
Pool: Communal
Climate Control: Air Conditioning, Hot A/C, Cold A/C
Views: Sea, Mountain, Country, Panoramic
Features: Lift, Fitted Wardrobes, Near Transport, Private Terrace, Solarium, WiFi, Gym, Sauna, Storage Room, Ensuite Bathroom, Access for people with reduced mobility, Double Glazing
Furniture: Optional
Kitchen: Fully Fitted
Garden: Communal
Security: Gated Complex, Entry Phone, Safe
Parking: Underground, Garage, More Than One, Private
Utilities: Electricity
Category: Luxury, Resale
Ref.no: RSOR5264743
Price: € 669.000,-

Plus d'information ›››
Te koop Penthouse Costa Del Sol Benalmadena € 669.000,-

We are delighted to present for sale this stunning 3-bedroom, 2-bathroom duplex penthouse boasting spectacular panoramic views of the Mediterranean Sea.

This bright and airy property is ideally located just outside the charming village of Benalmádena Pueblo, and only a 15-minute drive from Málaga Airport. The main town of Arroyo de la Miel is just a short drive away, with a local bus stop within easy walking distance.

Property Features:

Spacious open-plan living, dining and kitchen area, flooded with natural light and double height ceiling;

Large patio doors opening onto a generous private south-facing terrace, offering breath-taking views of the Mediterranean Sea, surrounding mountains, and coastline;

Fully fitted modern kitchen with base and wall units, complete with integrated appliances;

Convenient guest WC on the main level.

Upper Level:

Three bedrooms, all with fitted wardrobes;

Master bedroom with en-suite shower room and access to a private south-facing terrace, enjoying the same spectacular sea and mountain views;

Full family bathroom;

2 underground parking spaces;

Large storeroom 7.90m2.

Community & Amenities:

Set within a secure gated community, residents benefit from:

Beautiful communal swimming pool;

Fully equipped gymnasium;

Sauna for relaxation;

A state-of-the-art gastro-themed event room with a fully equipped kitchen — ideal for entertaining, meetings, or social gatherings.

An exceptional opportunity to acquire this stunning property, offering breath-taking views and outstanding amenities!!

Expenses and taxes not included in the price. The purchase entails taxes and formalization costs for the buyer. As a guideline, it is reported that in second transfers the ITP in general in Andalusia is 7 and 3% (variable tariffs depending on price, number of copies and complexity). The buyer chooses a notary. If the buyer needs a mortgage: appraisal, conditions and bank costs will be according to the entity chosen by the buyer, as well as the management costs, and any other expenses inherent to the formalisation of the sale that legally correspond to the buyer, unless expressly agreed otherwise with the seller.

Alternatives

BOHACP1188_2709_V1_BD71.jpg

Te koop Penthouse Costa Del Sol Mijas Costa € 650.000,-

Price € 650.000,-
Plus d'information
BOHAAP3952_12765_V1_3489.jpg

Te koop Penthouse Costa Del Sol New Golden Mile € 695.000,-

Price € 695.000,-
Plus d'information
BOHAAP4842_26233_V1_DC35.jpg

Te koop Bovenverdieping - Penthouse Costa Del Sol Torremolinos € 750.000,-

Price € 750.000,-
Plus d'information
BOHACP1400_4534_V1_2F59.jpg

Te koop Appartement Costa Del Sol Estepona € 654.000,-

Price € 654.000,-
Plus d'information
Disclaimer | Links
Casadelmar %lng_cookie_notice% %lng_close%
x