Estepona

Te koop Herenhuis Costa Del Sol Estepona € 799.000,-

Ref.no: RSOR5284240
Price: € 799.000,-

1-7980e48d732b6fc85c14b43b94d2aa54.jpg

Te koop Herenhuis Costa Del Sol Estepona € 799.000,-

Bedrooms8
Salles de bains4
Superficie du terrain112m²
Living area250m²
Poolno
Gardenyes
Parkingno
Condition: Excellent
Climate Control: Central Heating
Features: Wood Flooring
Furniture: Not Furnished
Utilities: Drinkable Water
Ref.no: RSOR5284240
Price: € 799.000,-

Plus d'information ›››
Te koop Herenhuis Costa Del Sol Estepona € 799.000,-

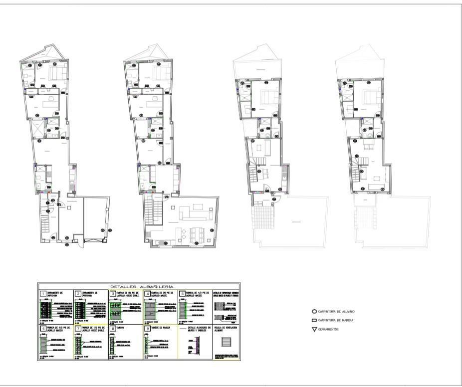
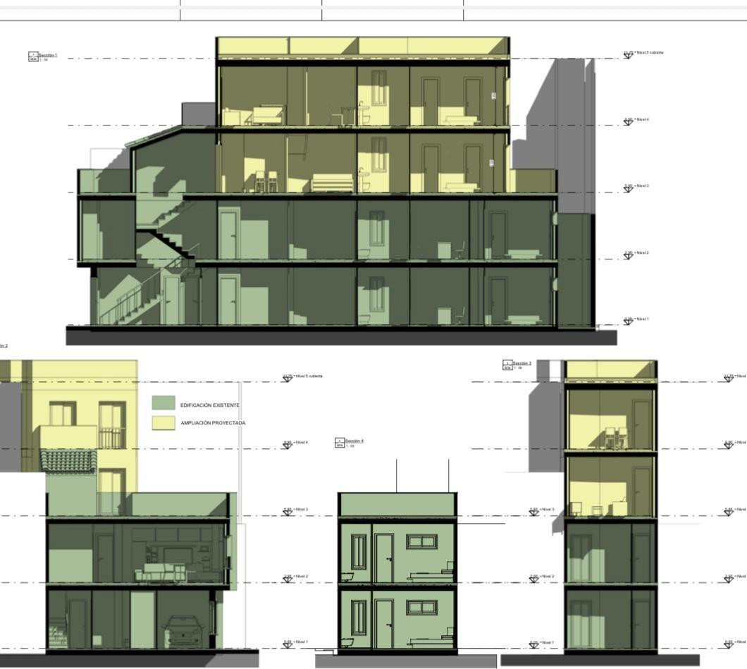
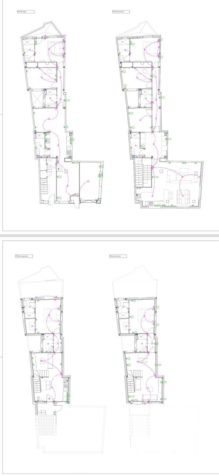
Fantastic opportunity to renovate in one of Estepona's most central areas, on a 122 m2 plot with a current 250 m2 building distributed across the ground, first, and second floors, and the possibility of adding another floor.
A permit is in place to add an attic level, which would bring the total to four levels. A detailed project report is available.

The current layout is as follows:
- Ground Floor (85 m2): spacious living room, four bedrooms, and two bathrooms. Spaces with abundant natural light and excellent potential for redistribution to suit your needs.

- First Floor (92 m2): living room, four bedrooms, and two bathrooms, offering great versatility to create spacious rooms or even two separate units.

- Second Floor: features two large terraces with incredible potential:
• 54 m2 terrace ideal for a chill-out area, private garden, or pool/solarium.

• 33 m2 terrace, perfect for an outdoor dining area or reading nook with views.

Project and permit for the renovation and expansion of 3 dwellings!

This property stands out for its large built area, its versatility, and the possibility of adding another floor, making it an exceptional investment for a family residential project, development, or holiday rental.

Don't miss this opportunity!

Alternatives

BOHAAP4803_25589_V1_5260.jpg

Te koop Herenhuis Costa Del Sol Elviria Playa € 880.000,-

Price € 880.000,-
Plus d'information
BOHACP1364_4240_V1_55FE.jpg

Te koop Herenhuis Costa Del Sol Estepona € 730.000,-

Price € 730.000,-
Plus d'information
BOHAAP4770_24773_V1_CA53.jpg

Te koop Herenhuis Costa Del Sol La Cala De Mijas € 753.000,-

Price € 753.000,-
Plus d'information
BOHACP1241_3204_V1_DB7B.jpg

Te koop Herenhuis Costa Del Sol Mijas Costa € 747.000,-

Price € 747.000,-
Plus d'information
Disclaimer | Links
Casadelmar %lng_cookie_notice% %lng_close%
x