Las Chapas

Te koop Half vrijstaand huis Costa Del Sol Las Chapas € 895.000,-

Ref.no: RSOR5188174
Price: € 895.000,-

1-7980e48d732b6fc85c14b43b94d2aa54.jpg

Te koop Half vrijstaand huis Costa Del Sol Las Chapas € 895.000,-

Bedrooms3
Salles de bains2
Superficie du terrain120m²
Poolyes
Gardenyes
Parkingno
Instelling: dicht bij golf, dicht bij winkels, dicht bij zee, dicht bij scholen
Staat: uitstekend
Zwembad: gemeenschappelijk
Klimaatregeling: airconditioning
Uitzicht: tuin, zwembad
Caractéristiques : Terrasse couverte, Placards intégrés, Proche des transports, Terrasse privée, Wi-Fi, Salle de bains attenante, Sol en marbre, Barbecue, Double vitrage
Meubels: optioneel
Keuken: Gedeeltelijk ingericht, keuken-woonkamer
Tuin: privé
Beveiliging: beveiligd complex, elektrische rolluiken, alarmsysteem
Ref.no: RSOR5188174
Price: € 895.000,-

Plus d'information ›››
Te koop Half vrijstaand huis Costa Del Sol Las Chapas € 895.000,-

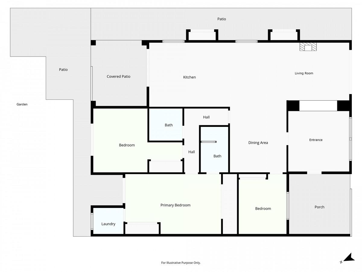
Villa jumelée à vendre à Las Chapas, Marbella, avec 3 chambres, 2 salles de bains dont une en suite, avec piscine commune et jardin privé. Elle dispose de 120 m² construits et d'un terrain de 400 m². Elle dispose des équipements suivants : commodités à proximité, transports à proximité, climatisation, cuisine entièrement équipée, sols en marbre, alarme, entrée sécurisée, double vitrage, salle à manger, barbecue, terrasse privée, cuisine équipée, salon, système d'arrosage automatique, volets roulants de sécurité, bars, buanderie, internet wi-fi, terrasse couverte, stores électriques, placards, résidence fermée, vue sur le jardin, vue sur la piscine, aire de jeux pour enfants à proximité, mer/plage à proximité, golf à proximité, portes vitrées, cuisine ouverte, meubles en option, excellent état, système de refroidissement au plafond, commerces et écoles à proximité.

Alternatives

1-7980e48d732b6fc85c14b43b94d2aa54.jpg

Te koop Half vrijstaand huis Costa Del Sol Estepona € 845.000,-

Price € 845.000,-
Plus d'information
1-7980e48d732b6fc85c14b43b94d2aa54.jpg

Te koop Duplexwoning Costa Del Sol Marbella € 849.000,-

Price € 849.000,-
Plus d'information
1-7980e48d732b6fc85c14b43b94d2aa54.jpg

Te koop Duplexwoning Costa Del Sol Marbella € 850.000,-

Price € 850.000,-
Plus d'information
1-7980e48d732b6fc85c14b43b94d2aa54.jpg

Te koop Half vrijstaand huis Costa Del Sol Benalmadena Costa € 899.000,-

Price € 899.000,-
Plus d'information
Disclaimer | Links
Casadelmar %lng_cookie_notice% %lng_close%
x