Guaro

Te koop Finca - Cortijo Costa Del Sol Guaro € 330.000,-

Ref.no: RSOR5224363
Price: € 330.000,-

1-7980e48d732b6fc85c14b43b94d2aa54.jpg

Te koop Finca - Cortijo Costa Del Sol Guaro € 330.000,-

Bedrooms3
Salles de bains1
Superficie du terrain127m²
Poolyes
Gardenyes
Parkingno
Built year1984
Instelling: Land
Orientatie: Noord
Staat: redelijk, renovatie vereist
Zwembad: privé
Klimaatregeling: open haard
Uitzicht: Bergen, Land
Functies: Overdekt terras, privéterras, solarium, berging
Meubels: optioneel
Keuken: gedeeltelijk ingericht
Tuin: privé
Parkeren: Open, meer dan één, privé
Hulpprogramma's: elektriciteit, drinkwater
Categorie: Wederverkoop
Ref.no: RSOR5224363
Price: € 330.000,-

Plus d'information ›››
Te koop Finca - Cortijo Costa Del Sol Guaro € 330.000,-

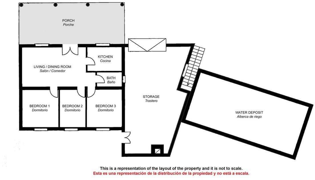
Magnifique finca à vendre à Guaro, située sur un terrain partiellement clôturé de 36 500 m², idéale pour profiter du calme de la campagne et de grands espaces. La propriété comprend une maison, un grand hangar, une véranda, une piscine et une réserve d'eau, ainsi que des espaces pour la culture d'amandiers et d'oliviers.

Maison:
La maison principale est de plain-pied et dispose d'une terrasse sur le toit (accessible par un escalier extérieur). Le rez-de-chaussée comprend :
• Salon-salle à manger
• Cuisine
• Salle de bain
• 2 chambres + une troisième pièce actuellement utilisée comme débarras
• Local de stockage

Annexes et espaces extérieurs :
• Grand débarras indépendant, accessible aussi bien de l'intérieur que de l'extérieur de la maison.
• Véranda couverte, idéale pour profiter du plein air.
• Piscine de 50 m² et réserve d'eau de 24 m².

Accéder:
• Chemin de terre avec quelques bosses et pierres instables, à l'intérieur du chemin privé de la propriété

Services publics :
• Eau de puits
• Eau de ville

Cette finca allie confort, intimité et connexion avec la nature, idéale comme résidence d'été, investissement ou projet agricole.

Alternatives

1-7980e48d732b6fc85c14b43b94d2aa54.jpg

Te koop Finca - Cortijo Costa Del Sol Almogía € 295.000,-

Price € 295.000,-
Plus d'information
1-7980e48d732b6fc85c14b43b94d2aa54.jpg

Te koop Finca - Cortijo Costa Del Sol Almogía € 349.000,-

Price € 349.000,-
Plus d'information
1-7980e48d732b6fc85c14b43b94d2aa54.jpg

Te koop Finca - Cortijo Costa Del Sol Vélez-málaga € 340.000,-

Price € 340.000,-
Plus d'information
1-7980e48d732b6fc85c14b43b94d2aa54.jpg

Te koop Finca - Cortijo Costa Del Sol Torrox € 349.000,-

Price € 349.000,-
Plus d'information
Disclaimer | Links
Casadelmar %lng_cookie_notice% %lng_close%
x